CYPE STRUCTURE PACKAGE – I përdorur për projektim strukturor nga mijëra zyra teknike dhe organe publike në mbarë botën, softueri i CYPE garanton besueshmëri maksimale në analiza dhe lejon përdoruesit të propozojnë zgjidhje teknike dhe ekonomike për projektin.
CYPECAD: Analiza dhe Dimensionimi i Strukturave
CYPECAD është një software i avancuar që merret me projektimin, analizën dhe dimensionimin e strukturave për ndërtesa dhe vepra civile të ekspozuara ndaj forcave vertikale dhe horizontale, si dhe ndaj ekspozimit ndaj zjarrit. Software i mundëson përdoruesve të analizojnë dhe projektin mbështetje si kolona (në beton, çelik, kompozite dhe dru), mure të betonit, dhe mure të tjera si ato të bllokut dhe të tullave.
Elementët Kryesorë të Strukturës së Analizuar:
- Kolona: Kolona të betonit të armuar, çeliku dhe kompoziteve.
- Muret e Forcës dhe Muret e Zakonshme: Mure të betonit të armuar dhe mure të ndërtuara nga blloqe betoni ose tulla.
- Trarë dhe Shtresa: Trarë në beton, çelik dhe kompozite, si dhe shtresa të ndryshme si ato të një drejtimi, të zbrazëta, dhe të post-tensionuara.
- Themeli: Plaça, trarë themeli, themele dhe kapakë kolonash.
- Lidhje të Çelikut: Lidhje të salduara dhe të bullonuara.
CYPECAD gjithashtu ofron analizë të detajuar të forcës për strukturat e sheshta dhe përdor metodat e matricës së rrigiditetit për të kryer analiza hapësinore 3D. Përveç kësaj, software mbështet projektimin e shkallëve dhe sistemeve të themelit, duke përfshirë verifikimin e rezistencës ndaj prerjes dhe shpërthimit për shtresat dhe themelin.
Raportet dhe Dokumentacioni:
CYPECAD automatikisht gjeneron raporte justifikuese për çdo segment të projektimit të strukturës, duke përfshirë përshkrimet dhe raportet e detajuar të analizës së ngarkesës dhe rezistencës ndaj zjarrit. Përdoruesit mund të marrin dokumentacion të detajuar dhe të shtypur ose të eksportuar në formate të ndryshme si PDF, DOCX, etj.
Integrimit në Platformën BIMserver.center:
CYPECAD është i lidhur ngushtë me platformën BIMserver.center, duke lejuar një punë bashkëpunuese përmes ndarjes së skedarëve në formate të bazuar në standarde të hapura. Kjo mundëson përditësimin e vazhdueshëm të skedarëve të projekteve që zhvillohen në mënyrë kolaborative.




CYPE 3D: Analiza dhe Projektimi i Strukturave me Elemente Lineare
CYPE 3D është një program i pavarur që analizon dhe projektin struktura me elemente lineare si shufra të betonit, çelikut, aluminit, drurit, apo materialeve të tjera. Ky program përfshin gjithashtu projektimin e lidhjeve (lidhje të salduara dhe me bullona për seksione I të çelikut të valcuar dhe të salduar si dhe për seksione të boshatisura strukturale) dhe bazamentet e tyre me pllaka bazë, këpucë, kapakë kolonash, rripa dhe trarë lidhës.
Ambienti i Punës dhe Veçoritë Kyçe:
- Ambienti i Punës: CYPE 3D ofron një mjedis pune të njohur me dritare që mund të personalizohen, duke ndihmuar përdoruesit të përshtatin hapësinë e tyre të punës sipas nevojave të projektit.
- Elementët e Strukturës: Programi lejon projektimin e shufrave dhe kolonave në materiale të ndryshme dhe gjithashtu verifikon rezistencën ndaj zjarrit të seksioneve të drurit dhe çelikut.
- Analizat: CYPE 3D kryen analiza sismike dhe analiza për ngarkesat e erës, duke marrë parasysh efektet e rendit të dytë (P-delta).
- Llojet e Ngarkesave: Programi mbështet një gamë të gjerë ngarkesash, përfshirë ngarkesat pikë, uniforme, shiritore, dhe të tjera, të cilat mund të aplikohen në nyje dhe shufra.
Analizat e Shtetit Limit dhe Ngarkesat:
- Shtetet Limit: CYPE 3D mundëson konfigurimin e shteteve limit për çdo material.
- Kombinimet e Ngarkesave: Programi gjeneron automatikisht kombinimet e ngarkesave bazuar në kushtet e specifikuara nga përdoruesi.
Të Tjerë:
- Ndërveprimi me Programet e Tjera: CYPE 3D punon si një program i pavarur si dhe në kombinim me CYPECAD si një strukturë 3D e integruar.
- Raportet: Programi ofron mundësinë për të shikuar dhe printuar raporte të situatave të projektit, duke përfshirë koeficientët e sigurisë dhe koeficientët e kombinimeve për çdo lloj ngarkese.






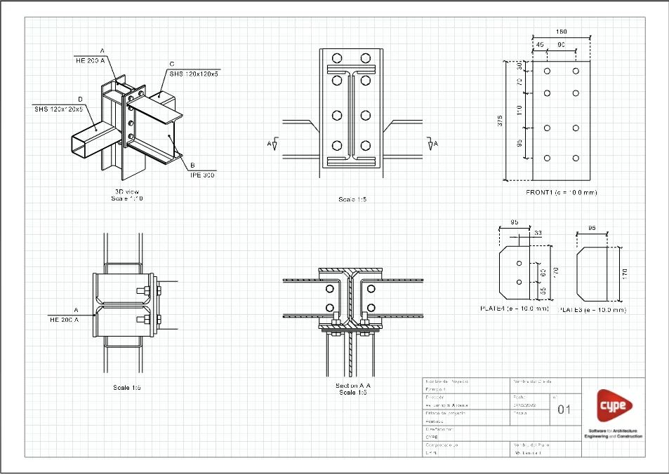
CYPE Connect: Mjet për Modelimin, Analizën dhe Verifikimin e Lidhjeve në Struktura të Çelikut dhe Drurit
Hyrje: CYPE Connect është një program që përdor metodën e elementeve të fundme për modelimin, analizën dhe kontrollin e kodit të lidhjeve në struktura të çelikut dhe drurit. Ky program përfshin motorin e analizës OpenSees©, i zhvilluar në Universitetin e Kalifornisë, Berkeley, për të kryer analiza të plota. Përveç projektimit dhe verifikimeve, CYPE Connect ofron një mjet për gjenerimin e fletëve me vizatime të detajuara të lidhjeve.
Ambienti i Punës dhe Proceset e Mbështetura nga Programi: CYPE Connect ofron një gamë të gjerë opsionesh të rrjedhës së punës si një mjet Open BIM dhe është i lidhur me platformën BIMserver.center. Krijimi, analiza dhe informacioni grafik i lidhjeve individuale kryhen plotësisht brenda vetë programit. Programi gjithashtu mbështet importimin e modeleve të strukturave të çelikut të analizuara më parë në CYPE 3D ose CYPECAD, si dhe importimin e modeleve strukturale të çelikut në formatin IFC përmes IFC Uploader.
Si të Filloni: CYPE Connect lejon përdoruesit të punojnë duke krijuar nyje të reja dhe duke futur forca dhe kombinime manualisht, ose duke importuar modele strukturale BIM, të cilat programi do t’i interpretojë për të gjeneruar automatikisht nyje. Mund të gjeni më shumë informacion në videot udhëzuese të shpejta të CYPE Connect.
Definimi i Karakteristikave të Projektit: Në shiritin kryesor të veglave, në grupin “Projekti”, mund të përcaktohen të dhënat e projektit siç janë zgjedhja e kodit të përdorur në analizën e lidhjeve dhe materialet e përdorura. CYPE Connect mbështet një gamë të gjerë kodesh për çelik dhe dru, duke përfshirë Eurocodes dhe standarde të tjera ndërkombëtare.
Biblioteka e Materialeve: CYPE Connect lejon ruajtjen e karakteristikave të materialeve të përdorura në projekt në bibliotekat e tij të materialeve, duke përfshirë llojet e çelikut për seksione dhe pllaka, çelikut për bullona, dhe llojet e betonit.
Biblioteka e Elementëve: Programi gjithashtu lejon ruajtjen e karakteristikave të elementëve në bibliotekat përkatëse, si biblioteka e seksioneve dhe biblioteka e bullonave.
Modelimi, Analiza dhe Informacioni Grafik i Lidhjeve: CYPE Connect ofron mundësinë për të analizuar lidhjet ndërmjet elementeve strukturale të bëra nga çeliku, druri, ose kombinime të të dyjave në të njëjtën lidhje. Analiza përfshin gjithashtu mundësinë e modelimit të elementeve të ankorimit të fiksuar në kolonat e betonit.
Raportet e Analizës: Rezultatet e analizave të kryera në CYPE Connect mund të merren edhe si raporte, të cilat mund të përfshijnë të dhëna mbi komponentët e lidhjes, ngarkesat e aplikuar, kontrollimet dhe shënimet.
Integrimi në Platformën BIMserver.center: Shumë nga programet e CYPE janë të lidhura me platformën BIMserver.center dhe lejojnë punën bashkëpunuese përmes shkëmbimit të skedarëve në formate të bazuar në standarde të hapura.






StruBIM Steel: Program për Detajimin e Strukturave të Çelikut
Hyrje: StruBIM Steel është një program i dedikuar për detajimin e strukturave të çelikut. Ky program përfshin mjete të ndryshme për modelimin ose importimin e një modeli BIM dhe lejon përdoruesit të përcaktojnë me saktësi të gjithë elementët e nevojshëm për detajimin, si seksionet, pllakat, bullonat, saldimet dhe ankorat. Si rezultat, aplikacioni ofron skedarë prodhimi në formatin DSTV.
Proceset e Mbështetura nga Programi: StruBIM Steel si mjet Open BIM dhe i lidhur me platformën BIMserver.center, ofron opsione të ndryshme rrjedhësh pune:
- Modelimi i strukturave të çelikut direkt në StruBIM Steel
- Importimi i një strukture çeliku të dizajnuar në CYPE 3D
- Importimi i strukturave të zhvilluara në mjetet e tjera përmes StruBIM Uploader
- Importimi i strukturave nga një skedar XML i gjeneruar nga ETABS® ose SAP2000®
Ambienti i Punës: Ambienti i punës në StruBIM Steel është i ngjashëm me mjetet e tjera modeluese të CYPE dhe përmban një sistem dritareve që mund të personalizohen për të përshtatur hapësirën e punës me nevojat e projektit.
Definimi i Karakteristikave të Projektit: Në shiritin kryesor të veglave, në grupin “Projekti”, mund të përcaktohen të dhënat e projektit si zgjedhja e kodit të përdorur në analizën e lidhjeve. Programi ofron një gamë të gjerë kodesh për çelik dhe beton, të cilat mund të konsultohen në faqen e CYPE.
Biblioteka e Materialeve: StruBIM Steel lejon ruajtjen e karakteristikave të materialeve të përdorura në projekt nëpërmjet bibliotekave të materialeve, duke përfshirë llojet e çelikut për seksione dhe pllaka, si dhe çelikut për bullona dhe ankorë.
Biblioteka e Elementëve: StruBIM Steel gjithashtu lejon ruajtjen e karakteristikave të elementëve të projektit përmes bibliotekave të ndryshme, duke përfshirë bibliotekën e seksioneve të çelikut dhe bibliotekën e bullonave.
Modelimi i Strukturës dhe Lidhjeve: Programi përfshin mjete për hyrjen dhe modelimin e seksioneve, pllakave, bullonave, ankorëve dhe saldimeve. Gjithashtu ofron një panel për modelimin dhe analizën e lidhjeve, duke përdorur një listë operacionesh që përdoren në mënyrë sekuenciale për të përcaktuar elementet dhe gjeometrinë e lidhjes.
Analiza dhe Verifikimi i Kodit të Lidhjeve: Pasi të jetë modeluar lidhja, mund të kryhet analiza dhe verifikimi. Opsionet për analizë përfshijnë gjenerimin e rasteve të ngarkesave dhe analizën e qëndrueshmërisë së lidhjeve, duke përfshirë analizën e fortësisë dhe qëndrueshmërisë rrotulluese të seksioneve të çelikut.
Informacioni Grafik për Lidhjet: Në skedën “Sheets”, janë disa mjete që lejojnë të merren fletë të detajuara të lidhjeve nga të dhënat e hyra më parë në fazën e modelimit. Të gjitha veçoritë e gjetura në “Edit sheets” gjithashtu janë të disponueshme për rregullimin e skedave në lidhje.
Integrimi në Platformën BIMserver.center: Shumë nga programet e CYPE janë të lidhura me platformën BIMserver.center dhe lejojnë punën bashkëpunuese përmes shkëmbimit të skedarëve në formate të bazuar në standarde të hapura.







Per me shume informacion na kontaktoni: